Umowa na wykonanie prac budowlanych BCU podpisana
We wtorek, 2 kwietnia, w Starostwie Powiatowym w Lęborku podpisano umowę na realizację prac budowlanych obiektów Branżowego Centrum Umiejętności (BCU). Dokument sygnowali starosta Alicja Zajączkowska oraz członek Zarządu Powiatu, Ryszard Wenta, reprezentujący Powiat, a w imieniu wykonawcy – Adam Hrycyk, właściciel Przedsiębiorstwa Produkcyjno-Handlowego HRYN-BUD. Zgodnie z zapisami umowy, zakończenie prac zaplanowano na 15 grudnia 2024 r.
W uroczystości podpisania umowy uczestniczyli również członek Zarządu Powiatu Jacek Perłak, kierownik Referatu Programów Pomocowych Hanna Kowalska oraz kierownik Referatu Realizacji Inwestycji Adam Etmański. Przedmiotem umowy jest zaprojektowanie i wykonanie robót budowlanych w ramach projektu "Utworzenie i wsparcie funkcjonowania nadmorskiego Branżowego Centrum Umiejętności z dziedziny energetyki odnawialnej (wiatrowej) realizującego koncepcję centrów doskonałości zawodowej (CoVEs)". Projekt współfinansowany jest ze środków Unii Europejskiej, Next Generation EU oraz Instrumentu na rzecz Odbudowy i Zwiększania Odporności w ramach Krajowego Planu Odbudowy. Inwestycja zostanie zrealizowana na terenie Centrum Kształcenia Zawodowego przy ul. Wojska Polskiego 31 w Lęborku.
Zakres prac określony jest w Programie Funkcjonalno-Użytkowym oraz Koncepcji Budowlanej, stanowiących część dokumentacji przetargowej. Integralną część umowy stanowią również oferta wykonawcy oraz harmonogram rzeczowo-finansowy. Wykonawca zobowiązał się do udzielenia 60-miesięcznej gwarancji na jakość wykonanych robót oraz rękojmi za ewentualne wady. W celu zabezpieczenia realizacji projektu wykonawca wniesie zabezpieczenie w wysokości 5% wynagrodzenia umownego brutto, tj. 288 312 zł. Całkowita wartość umowy wynosi 5 766 240 zł brutto. Rozliczenie realizacji inwestycji następować będzie na podstawie faktur VAT, wystawianych po zakończeniu poszczególnych etapów prac. Wypłata pierwszej transzy środków nastąpi dopiero po złożeniu przez wykonawcę wniosku o pozwolenie na budowę.
Podpisana umowa liczy 47 stron i szczegółowo określa zobowiązania obu stron oraz warunki realizacji projektu zgodnie z przepisami prawa. W trakcie budowy przewidziano odbiory częściowe oraz odbiór końcowy. Nadzór nad realizacją inwestycji sprawować będzie mgr inż. Patryk Górgurewicz, posiadający uprawnienia do kierowania robotami budowlanymi w specjalności konstrukcyjno-budowlanej.
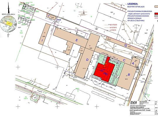
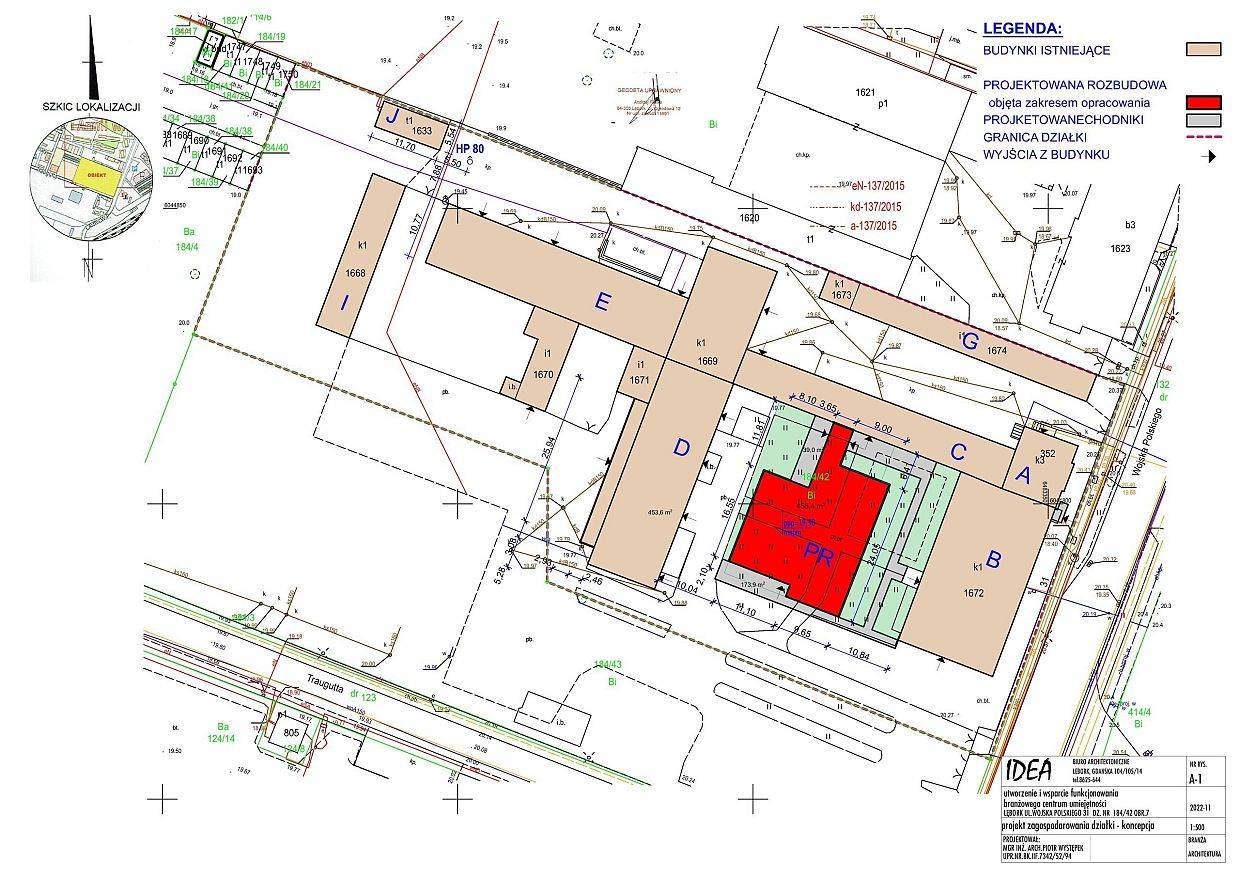
Realizacja projektu obejmuje rozbudowę istniejącego budynku Centrum Kształcenia Zawodowego o nową część kubaturową wraz z instalacjami i zagospodarowaniem terenu. Nowo powstały obiekt będzie spełniał normy budynków o niemal zerowym zużyciu energii, zgodnie z dyrektywą Parlamentu Europejskiego i Rady UE z 19 maja 2010 r.
Branżowe Centrum Umiejętności w Lęborku jest pierwszym tego typu nadmorskim ośrodkiem dedykowanym energetyce wiatrowej. Projekt zainicjowany przez Radę Powiatu Lęborskiego został oficjalnie ogłoszony 27 listopada 2023 r. podczas spotkania w Starostwie Powiatowym, w którym uczestniczyli przedstawiciele samorządu, edukacji oraz branży energetycznej. Partnerami projektu są kluczowi gracze w sektorze energetyki wiatrowej, w tym Grupa ORLEN, Polskie Towarzystwo Morskiej Energetyki Wiatrowej i Windhunter Academy.
Inicjatorem koncepcji BCU jest Ministerstwo Edukacji i Nauki, a jego głównym celem jest wzmocnienie współpracy między pracodawcami a instytucjami edukacyjnymi w celu kształcenia nowego pokolenia specjalistów dostosowanych do dynamicznych zmian w branży. W Polsce planowane jest utworzenie 120 podobnych centrów, z każdym skoncentrowanym na innym zawodzie. Lębork będzie specjalizował się w energetyce wiatrowej, dynamicznie rozwijającym się sektorze, który stoi u progu realizacji pierwszych polskich farm wiatrowych na Morzu Bałtyckim.
Powstanie BCU w Lęborku, przy wsparciu Polskiego Towarzystwa Morskiej Energetyki Wiatrowej, pomoże wypełnić lukę kompetencyjną w sektorze morskiej energetyki wiatrowej w Polsce. Absolwenci centrum otrzymają certyfikaty potwierdzające ich specjalistyczne kwalifikacje do pracy przy budowie i eksploatacji farm wiatrowych. Współpraca Rady Powiatu Lęborskiego z liderami branży i instytucjami edukacyjnymi pokazuje nowatorskie podejście do kształcenia w sektorze energetyki odnawialnej, a sama inwestycja wzmacnia pozycję regionu jako kluczowego ośrodka edukacyjnego w tej dziedzinie.
Nadmorskie Branżowe Centrum Umiejętności w Lęborku zaprasza na darmowe szkolenia, szczegółowe informacje w zakładce SZKOLENIA. Zapraszamy!






